Loading...

- 2 pièces 27.10 m²

1 008 €dont 67,58% TTC à la charge de l'acquéreur602 € hors honoraires
PARIS 1er
2 pièce(s)
1 chambre(s)
27m²
- Description du bien
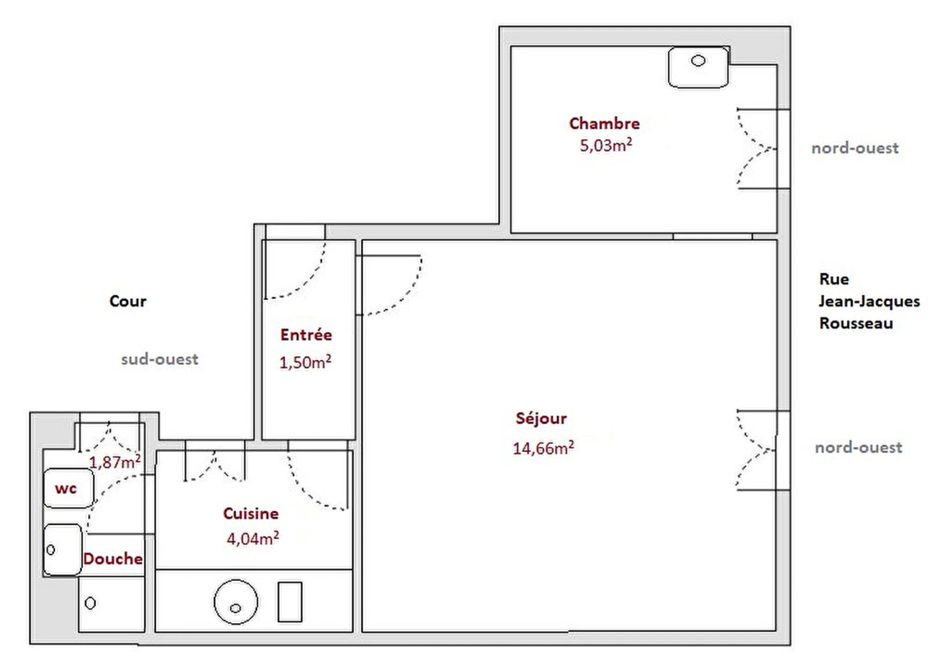
Proche Louvre, Palais Royal et Chatelet Les Halles. Rue Jean-Jacques Rousseau. Quartier très recherché, dynamique et commerçant. Joli 2 pièces de 27,10m² loué en vide au premier étage avec ascenseur comprenant : entrée (1,50m²), séjour (14,66m²), petite chambre avec lavabo (5,03m²), cuisine aménagée avec four et lave-linge (4,04m²), salle de douche avec wc (1,87m²). Appartement en bon état, au charme de l'ancien (poutres apparentes, parquet), fenêtre double vitrage. Disponible le 8 janvier 2018.
Honoraires à la charge du locataire:
- Bail d'habitation principale soumis à la loi du 06.07.89 : 15 euros TTC /m²
- Bail d'habitation exclu du champ d'application de la loi du 06.07.89 : 1 mois de loyer charges comprises + 135 euros TTC de frais d'actes.
- FREDéLION, c'est...
Chiffre
15
années
d'expertises
Chiffre
3313
avis clients
(MeilleursAgents, Google my business et Opinion System)
Chiffre
106
collaborateurs
à votre service
Votre agence
26 rue de Turin, 75008 PARIS
01 44 90 90 17
Contactez-nous
Pour ce bien
*champs requis
Loading...
Les informations recueillies sur ce formulaire sont enregistrées dans un fichier informatisé par Fredélion Paris 8 pour gérer votre demande de contact. Elles sont conservées pour la durée nécessaire à la gestion de la relation client dans le respect des prescriptions légales applicables et sont destinées au responsable de la publication de ce site : Fredélion Paris 8.
Conformément à la loi « informatique et libertés », vous pouvez exercer votre droit d'accès aux données vous concernant et les faire rectifier en contactant Fredélion Paris 8 europe@fredelion.com ou en utilisant ce formulaire. Nous vous informons de l’existence de la liste d'opposition au démarchage téléphonique « Bloctel », sur laquelle vous pouvez vous inscrire ici : https://www.bloctel.gouv.fr/
FREDELION PARIS 8 EUROPE - ALEPH TRANSACTIONS SAS, société au capital de 33300.00 euros. Siège social : 28 bd Malesherbes 75008 PARIS. N° de TVA intracommunautaire : FR52882080054. RCS PARIS immatriculé(e) 882080054.
Carte T : CPI75012021000000432. Date de délivrance : NC. Lieu de délivrance : CCI de Paris - ile de France. Caisse de garantie financière : CEGC. N° de caisse de garantie : NC. Adresse de la caisse de garantie : 59 AVENUE Pierre Mendès France 75013 PARIS. Montant de la garantie financière : 839900 euros.
Conformément aux articles L611-1 et suivants et R612-1 et suivants du Code de la consommation, le consommateur est informé qu’il a la possibilité de saisir un ou notre médiateur de la consommation, à savoir situé
Barème d'honoraires